機能紹介 / 事例紹介 / その他 / ヒント
BLOG
scan to BIMの検証
昨秋から、Materportの有料ダウンロードサービスに「scan to BIM」が加わりました。
空間データを.RVT形式(LOD 200のBIMファイル)や.DWG形式に変換します。
有料サービス『scan to BIM』登場!

3つの【メニュー】があります。
「構造 ArchiTecture」:目で確認できる壁、床、ドア、柱、天井、窓、浴室設備、階段、屋根など 「家具 Funitture」:目で確認できる机、テーブル、キャビネット、棚、椅子、座椅子、家電製品、一部の壁掛けなど 「設備配管 MEP」:目で確認できるHVACダクト、配管器具、パイプ、電源/データコンセント、一部のコンジットなど
【料金体系】

※1Kft2=100m2
【処理時間】

そこで早速、梓設計株式会社様のご協力の元、下記2案件で検証しました。
※AZSAHALLを「MEPとインテリア家具」、C2会議室を「インテリア家具」で実施します。
【サンプル:Matterportスペース】
・AzusaHall(BIMモデル事業共有中) https://my.matterport.com/show/?m=uMNAzh362aM
※パスワード : Azusabim

・C2会議室 https://my.matterport.com/show/?m=cC9y47QNUxi
※パスワード : Azusabim

検証結果》
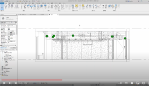
Revitにファイルを読み込んでみました。 下記Youtube動画でご確認ください。
◆ Scan to BIM 検証 《家具》https://youtu.be/p4S0zmectgI

◆ Scan to BIM 検証 《建築+MEP》https://youtu.be/V0vV1L48L0k

◆ Scan to BIM 検証 《建築》https://youtu.be/dwzS9fC9C0Y


ナレッジベースも合わせてご参照ください。
メーカー解説ページ 》 Scan-to-BIM(BIMforAutodesk™)

【参考】
その他に、メーカー解説ページ 》
Revit用のMatterportプラグイン
ブログ一覧へタグ
- カスタマーエクスペリエンス
- Recap
- ショールーム
- マーケティング
- E57
- 3Dショーケース
- MatterPak
- ショッピング
- ロジスティック
- 点群
- プラットフォーム
- 撮影デバイス
- DIY
- サプライチェーン
- 新機能
- ビュー
- フリープラン
- ダッシュボード
- サポートページ
- Pro3
- 物件
- 大学
- カード
- サービス
- メタバース
- 不動産
- 測定
- 卒業式
- FAQ
- フロアプラン
- Matterportアプリ
- 3D技術
- 面積計算
- アート作品
- リンク
- BIM
- MK360+
- 住宅
- カメラ
- 脱出ゲーム
- パスワード
- Autodesk
- API
- バーチャルツアー
- タグ
- マーティン・ルーサー・キング
- 育成
- Revit
- 効率化
- 博物館
- イースター
- 自動顔ぼかし機能
- キャリア
- ビジュアライゼーション
- 活用
- 展示
- チャリティー
- プライバシー保護
- 見学ツアー
- 3D
- ゲーム
- ブラジル
- イベント
- BLM
- リローンチ
- 衛生設備
- コンサートホール
- フランク・ロイド・ライト
- Oculus Quest
- リチャード・ノイトラ
- 水道
- デジタルツイン
- iPhone
- ウォークスルー
- モダニズム建築
- ニュージーランド
- 3D写真
- タブレット
- 360°ビュー
- 店舗
- 観光
- ショーケース
- BIM360
- VR
- クラブ
- 美術館